• Arc2 architectuur
  • Kebajastraat 41, 1336 NA Almere
  • 036 521 7770
  • info@Arc2.nl

Watersportvereniging Flevoland

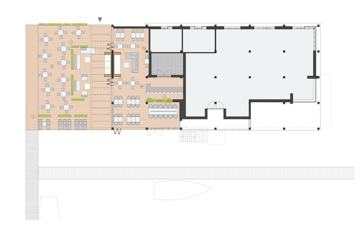
Arc2 architectuur heeft een concept bedacht voor de interne reorganisatie, modernisering en verduurzaming van een bestaand clubgebouw van een watersportvereniging uit Flevoland. Het plan voorziet onder meer in extra kantoorruimte met kantine en lounge bar. Zorgvuldig geplaatste ramen in combinatie met groene wanden in het interieur zorgen voor aangename en comfortabele binnenruimten. Een volledige transparante gevel aan de zuidzijde van het gebouw maakt de connextie met de naastgelegen haven en interactie tussen de binnenruimte en buitenplein mogelijk. Het dakoverstek aan deze zijde articuleert de entree en minimaliseert tegelijkertijd ongewenste opwarming door directe zontoetreding in de zomer. Voor de gevelbekleding van het gebouw wordt gebruik gemaakt van recyclebaar hout. 

 

Gerelateerde Projecten