• Arc2 architectuur
  • Kebajastraat 41, 1336 NA Almere
  • 036 521 7770
  • info@Arc2.nl

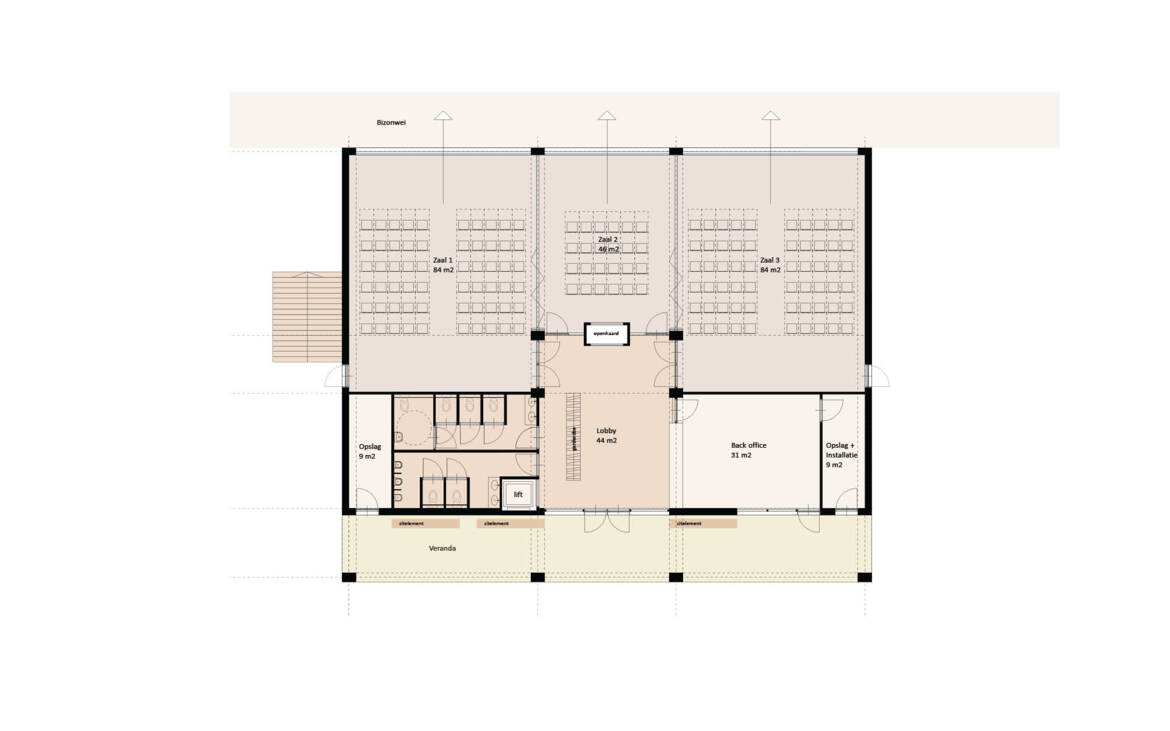
BizonLodge Blijdorp Rotterdam

De BizonLodge is een ontwerp voor een kleinschalig congres- en evenementencentrum op een bijzondere locatie in Diergaarde Blijdorp. Door vormgeving en toepassing van natuurlijke materialen in de gevel wordt het gebouw als vanzelfsprekend opgenomen in haar omgeving. Intern maakt de indeling van het gebouw een flexibel gebruik  voor verschillende gelegenheden mogelijk. De panoramische openingen in de zalen en de zorgvuldig ingerichte daktuin bieden de bezoekers een uniek zicht op deze bijzondere dieren.  

Gerelateerde Projecten