• Arc2 architectuur
  • Kebajastraat 41, 1336 NA Almere
  • 036 521 7770
  • info@Arc2.nl

Groeiwoning Oosterwold Almere

Compacte groeiwoning

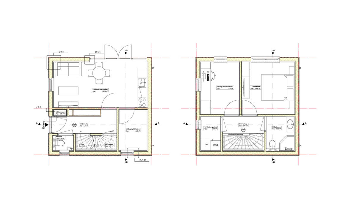
Op een royale kavel in Oosterwold Almere is een compacte, energiezuinige en betaalbare eengezinswoning gerealiseerd. Het vrijstaande woonhuis is duurzaam gebouwd, gericht op eenvoud en als groeiwoning op toekomstige uitbreidbaarheid voorbereid. De indeling van het huis is efficient en praktisch georganiseerd waarmee de leefruimte maximaal kan worden benut. Om binnen de schil van het huis zoveel mogelijk gebruiksoppervlakte te behouden is gekozen om de buitenwanden compact uit te voeren met een houtskelet opbouw en een afwerking van stucwerk aan de buitenzijde. Eisen vanuit de locatie met betrekking tot de slagschaduw van een naastgelegen windmolenpark en geluidseisen van een nabije gelegen snelweg zorgen voor een nagenoeg gesloten gevel aan de zuid- en oostzijde. Gelegen aan een bosrand heeft men vanuit de woonkamer en bovengeleven slaapkamers fraai zicht op het achtergelegen bos.
De plattegrond en installaties in de woning zijn voorbereid op uitbreidbaarheid. Fasering in het plan biedt de mogelijkheid voor een stapsgewijze investering en om te kunnen anticiperen op mogelijke toekomstige veranderingen. In de uitvoering van het woonhuis zijn de funderingspalen voor de uitbreiding al meegenomen. Over de totale breedte van het huis kan de oppervlakte van de woonkamer in een latere fase vergunningsvrij worden verdubbeld. 


 

Gerelateerde Projecten